Introducción al producto
Según los estándares de GB, los rieles de grúas son rieles que tienen estrictos requisitos de control de calidad y rendimiento y están especialmente adaptados a las condiciones de trabajo de la grúa. Como representante de este tipo de rieles de servicio pesado, los rieles GB Qu120 de grúas están cuidadosamente hechos de acero tranquilo en un horno de acaudación abierta. Los rieles tienen un excelente rendimiento en dureza, tenacidad y rigidez. Incluso en un entorno de trabajo complejo, los rieles Qu120 Crane pueden ayudar a las operaciones de grúas.
Los rieles de grúa Qu120 son los rieles de grúa de aviación más grandes y pesados entre los rieles GB Crane. A menudo se usan en grandes escenas industriales como metalurgia de acero, puertos y muelles, y minería. El mayor tamaño y peso de los rieles de grúa Qu120 les dan una mayor rigidez y estabilidad, lo que puede cumplir con los requisitos de carga de un gran levantamiento pesado.

Se selecciona acero U75V de alta calidad, que generalmente tiene mayor dureza y resistencia al desgaste. La dureza de la línea central de la superficie superior de la cabeza del riel es generalmente entre 300 y 380HBW. Esto permite que la superficie del riel resistiera el rodamiento y fricción a largo plazo de las ruedas de la grúa, reduzca el desgaste y la sangría, extienda la vida útil del riel y asegure que aún pueda mantener buenas condiciones de trabajo bajo el uso frecuente de operaciones de elevación pesada.
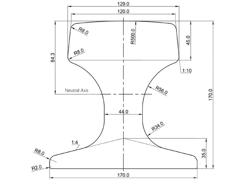
Especificaciones del producto

Embalaje y entrega de productos


Requisitos de instalación:La instalación de pistas de grúa Qu120 debe llevarse a cabo en estricta conformidad con los estándares y especificaciones relevantes. Primero, asegúrese de la planitud y la horizontalidad de la base de la pista, y el asentamiento desigual de la base debe controlarse dentro del rango permitido para evitar la deformación y el agrietamiento de la pista durante el uso. En segundo lugar, la colocación de la pista debe garantizar su rectitud y verticalidad, y las juntas de la pista deben procesarse finamente para garantizar la planitud y la resistencia de la conexión de las juntas y reducir el impacto y la vibración durante la operación de la grúa.
Mantenimiento:Para garantizar el funcionamiento normal de la pista Qu120 en operaciones de elevación pesada, el mantenimiento regular es esencial. El mantenimiento diario incluye la limpieza de la superficie de la pista, eliminando los desechos y las manchas de aceite a tiempo para evitar la corrosión y el desgaste en la superficie de la pista. Verifique regularmente el desgaste de la vía, especialmente la cabeza del riel y la cintura del riel. Cuando el desgaste excede el límite especificado, debe repararse o reemplazarse en el tiempo. Al mismo tiempo, verifique las partes de conexión de la pista, como pernos, placas de presión, etc., para asegurarse de que se sujeten de manera confiable para evitar que la flojencia afecte la estabilidad de la pista. Además, la Fundación de la pista debe ser inspeccionada. Si hay asentamiento o daño, debe tratarse a tiempo.




Etiqueta: QU120 Crane Rail Heshy Duty Lifting Work, China Qu120 Crane Rail Fabricantes de trabajo de elevación de servicio pesado Fabricantes, proveedores, fábrica





